Heim vorschlagen

Stamm Geisterburg - Bargteheide

1/8
Dusche
Parkplatz

BdP Stamm Geisterburg

max. 30 Personen

4 Räume

WC (Wassertoilette)

Beschreibung

Das Heim bietet Platz für etwa 30 Personen, Schlafsäcke und Unterlagen sind selbst mitzubringen.
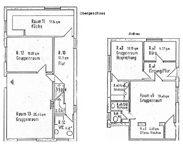
Ihr könnt folgende Räume nutzen:

  • im 1. Stock gibt es einen großen und einen kleinen Raum, eine gut ausgestattete Küche und ein Badezimmer mit WC und Dusche;

  • im Anbau sind ein großer Raum mit zwei riesigen Betten, eine Bibliothek mit Sofa, ein Büro mit Kopierer, ein Fotolabor und ein WC untergebracht;

  • vor dem Anbau ist ein Garten mit Feuerstelle, nebenan der Schulwald, ganz in der Nähe ist auch ein Schulsportplatz.

Umgebung

Das Heim liegt in einem Wohngebiet, und wird vom Stadtzentrum durch ein Schulgelände und durch den Stadtpark getrennt. Bis zum nächsten größeren Wald muss man etwas laufen. Dafür ist direkt neben dem Heim eine Wiese, der Schulwald, Schulhof und Sportplatz. Einkaufsmöglichkeiten sind zu Fuß erreichbar, der Bahnhof ist rund 800m entfernt

Standort
Zur Webseite des Heimes